반응형

동물복지지원센터 강동 건립 설계공모(동물병원) 현상개요
- 위치 서울특별시 강동구 길동 12-7 새창으로 대상지 지도보기
- 부지면적 1,175 ㎡
- 건축물 주 용도 제2종근린생활시설 : 동물병원
종합의견서 요약
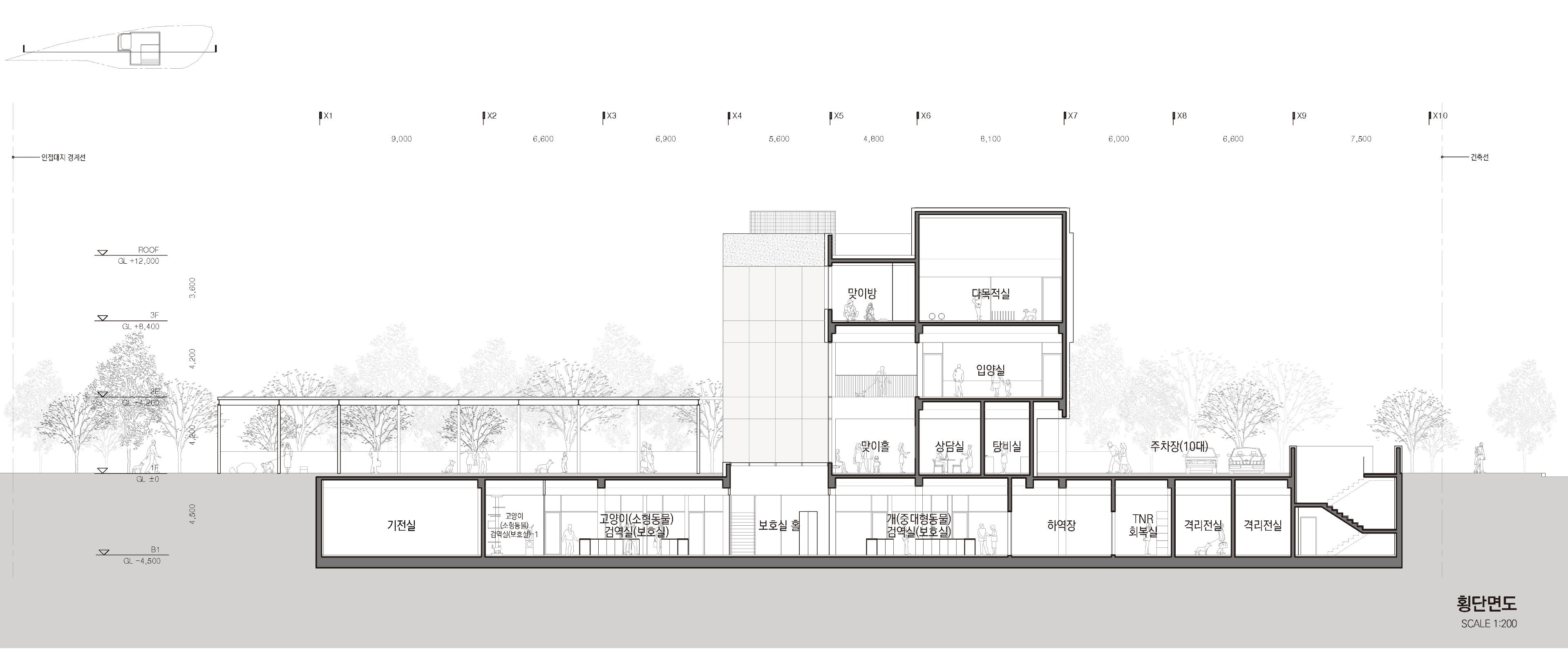
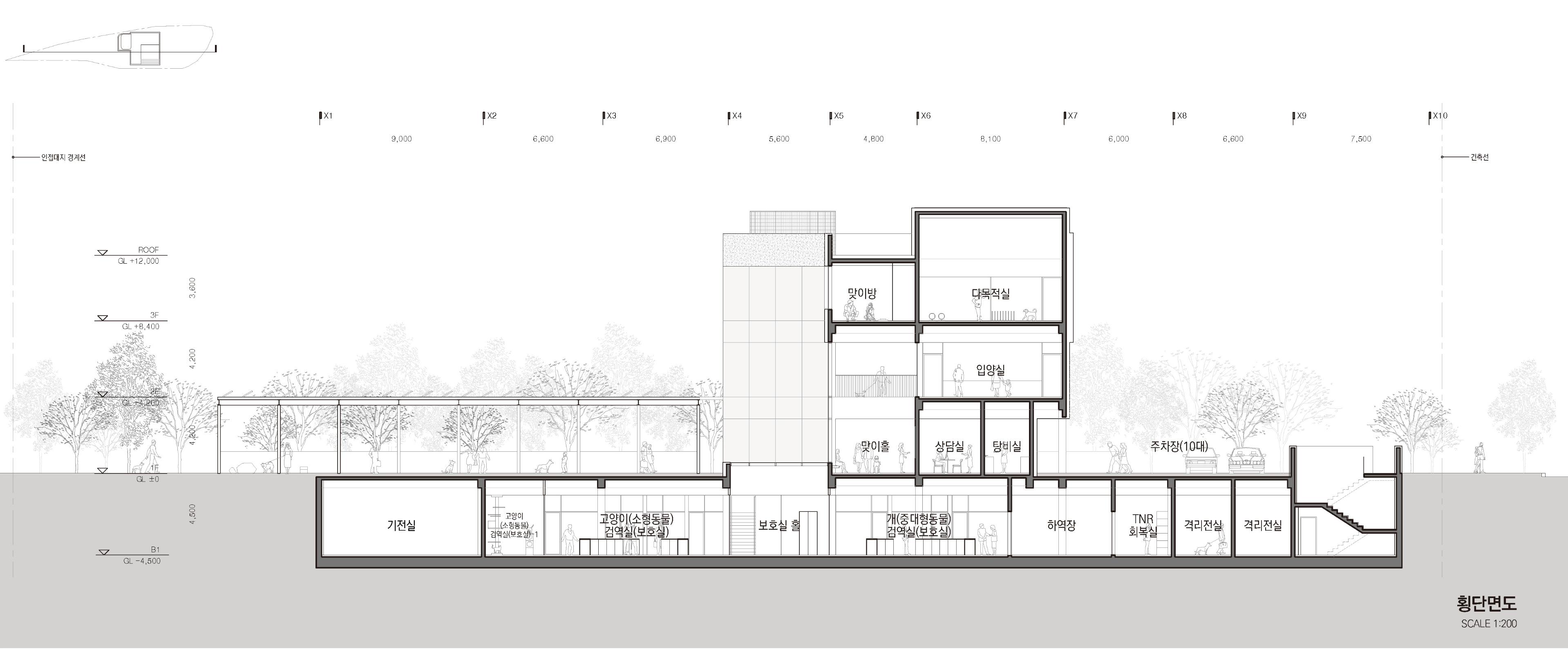
본 사이트는 자연녹지지역으로 건폐율이 낮아 주어진 연면적의 상당부분을 지하부분으로 풀어야 하는 숙제가 있었습니다.
그러므로, 지하계획에 자연환기. 자연채광. 합리적인 동선등을 풀어내는 것이 숙제였을 것이다.
당선안
1등- (주)건축사사무소 신

단면도

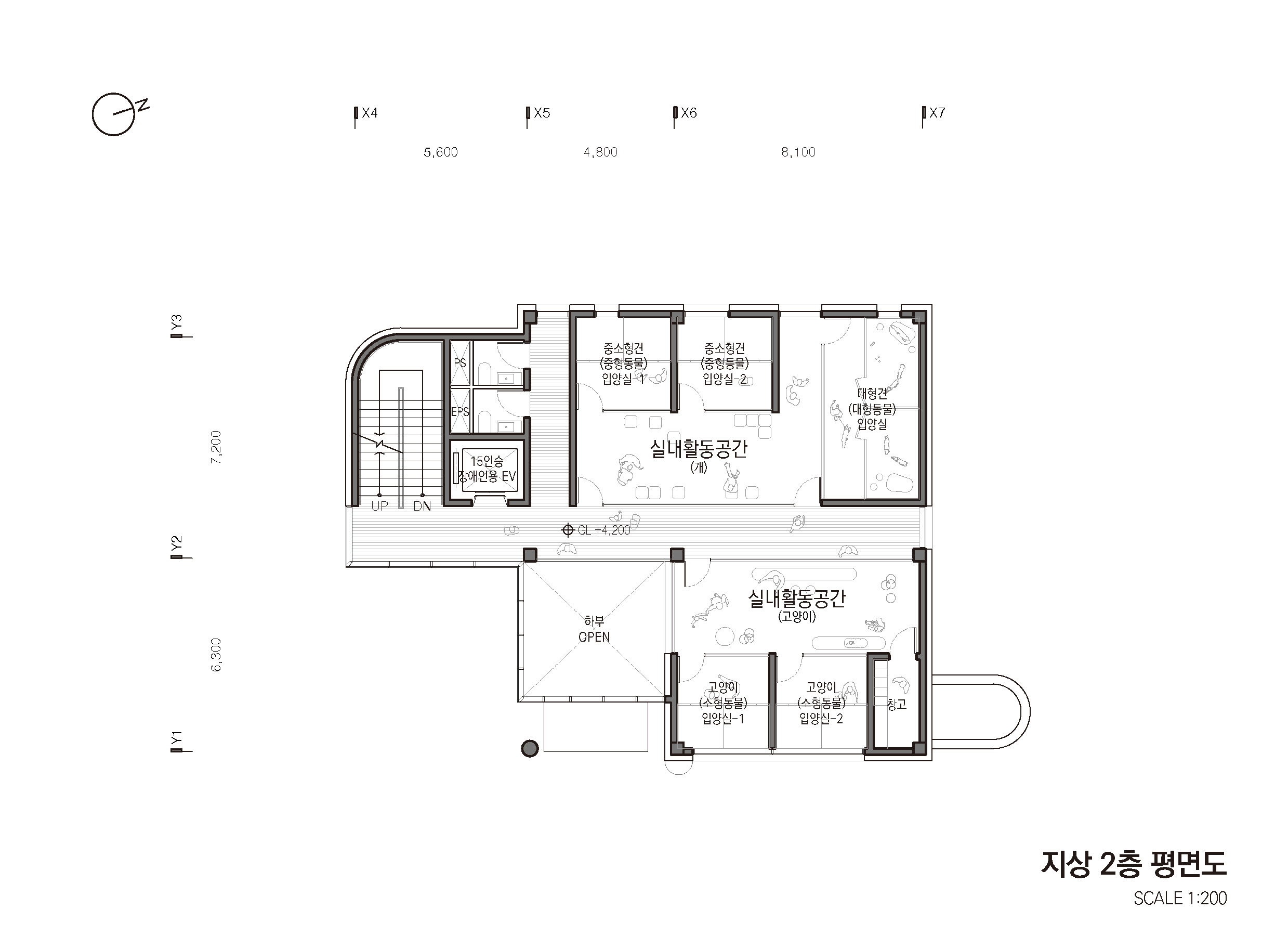
평면도



2등- 건축사사무소 필로,안목,오프니스

3등- 오후건축사사무소

4등- 에이스케이프건축사사무소

4등-건축사사무소 눅

▼ 아래 링크는 지침서를 볼 수 있습니다.
설계지침서_동물복지지원센터 강동 건립 설계용역(KOR).pdf
6.40MB
Design Guideline_Design Competition for Animal Care Center(ENG).pdf
7.53MB
3.과업내용서_동물복지지원센터 강동 건립(KOR).hwp
0.87MB
▼ 아래 링크는 더 많은 자료를 볼 수 있습니다.
동물복지지원센터 강동 건립 설계공모 (seoul.go.kr)
▼ 아래 링크는 유투브 자료를 볼 수 있습니다.
반응형
'현상설계모음 > 센터' 카테고리의 다른 글
| [부산] 사상 숲체험교육관 건립사업 (1) | 2024.09.11 |
|---|---|
| [부산]망미 청소년탐구센터 조성사업 설계공모(청소년센터) (4) | 2024.09.10 |
| [서울]개봉1동 어울림복합플랫폼 공개설계공모(청소년센터) (1) | 2024.09.09 |