설계공모개요
- 위치:부산 수영구 망미동 818-40
- 건축물 용도: 제1종근린생활시설
- 층수: 지상3층이하
- 대지면적:410㎡
- 연면적: 598.77㎡
- 총 예정사업비: 6,775백만원
- 예정 공사비:4,363백만원
- 예정 설계비: 232백만원
참가등록97건 _ 제출36건
당선안
외부공간 확보가 많이 된 것이 차별성을 나타내는 당선안
1등_건축사사무소큐제이

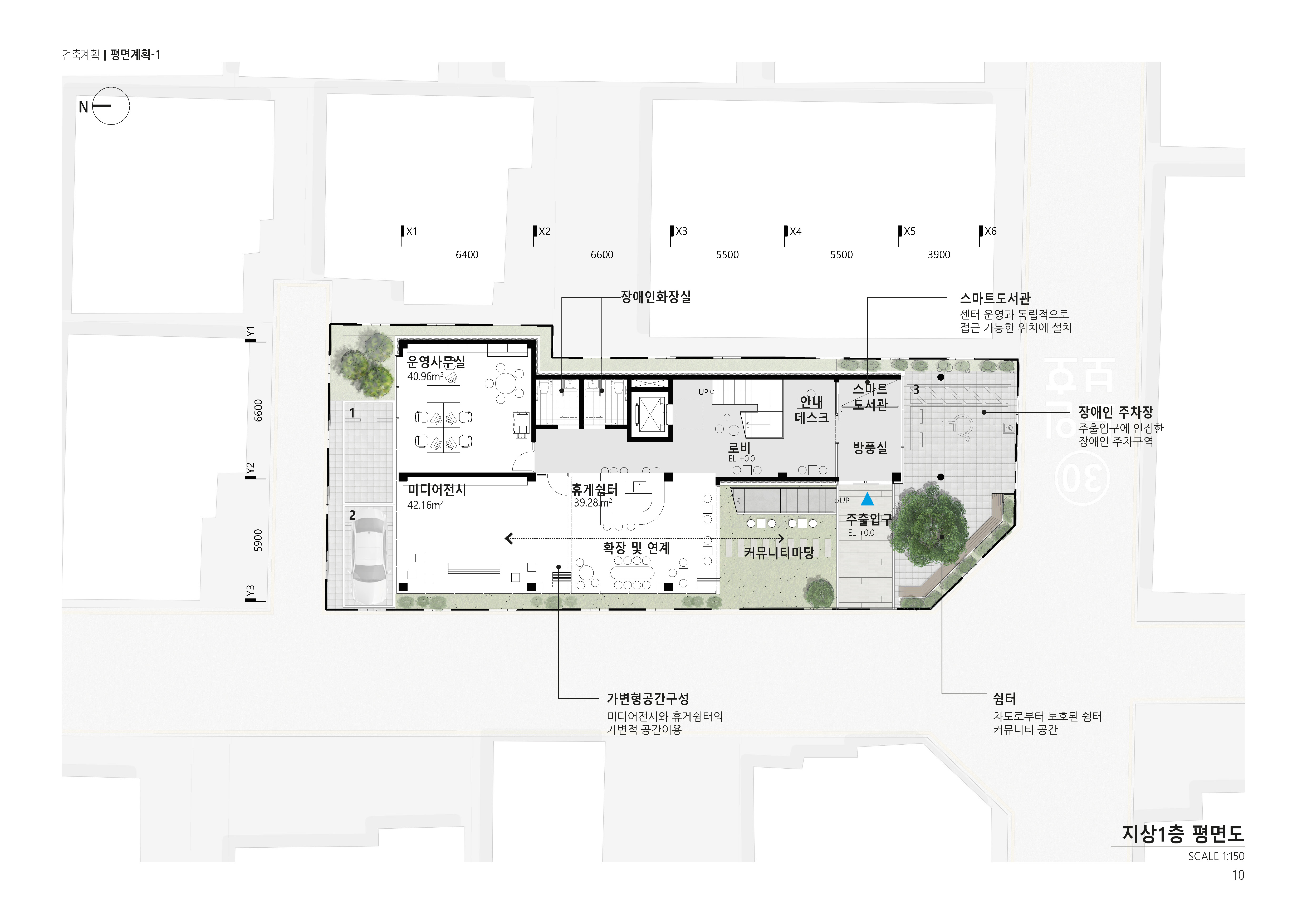
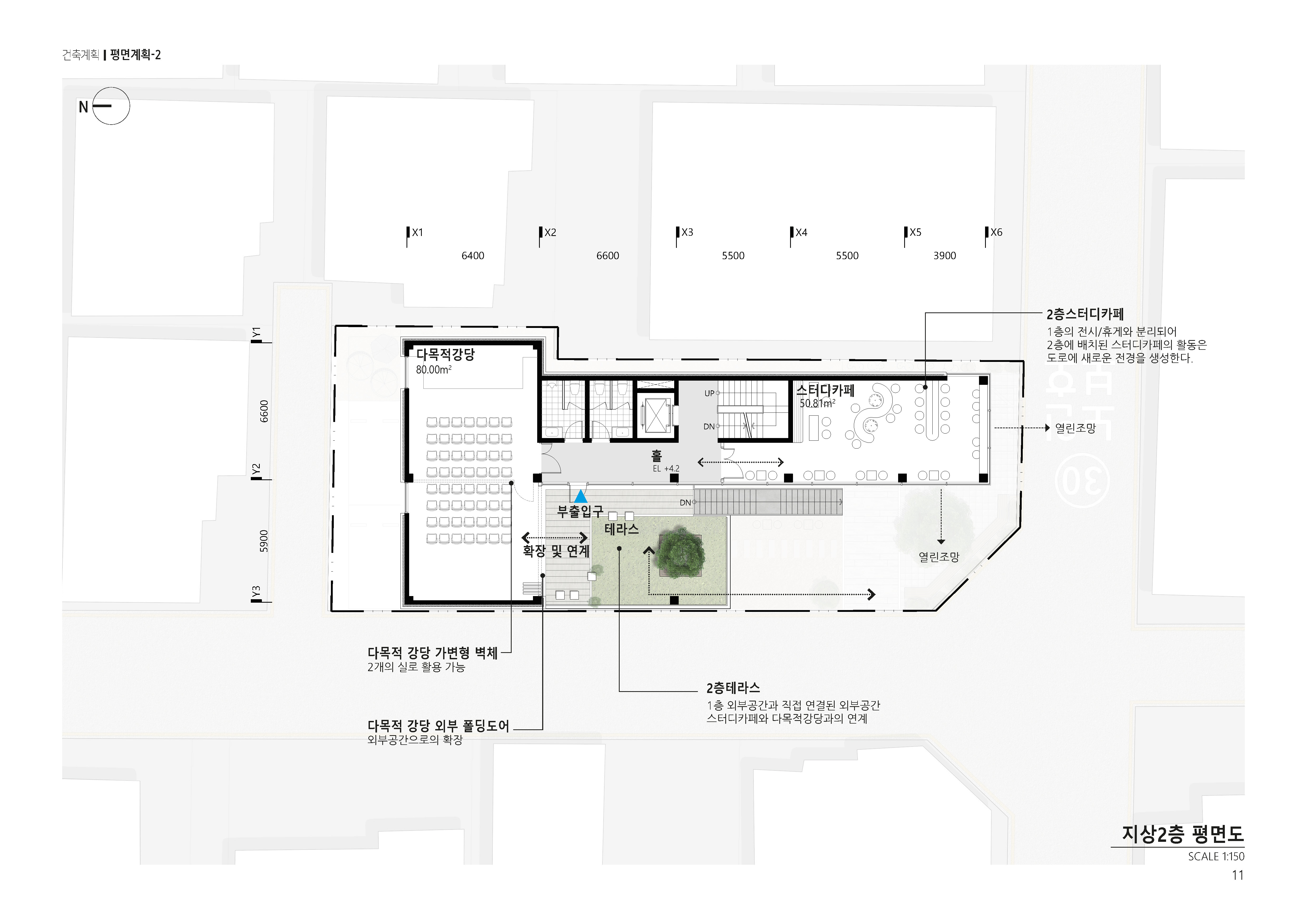
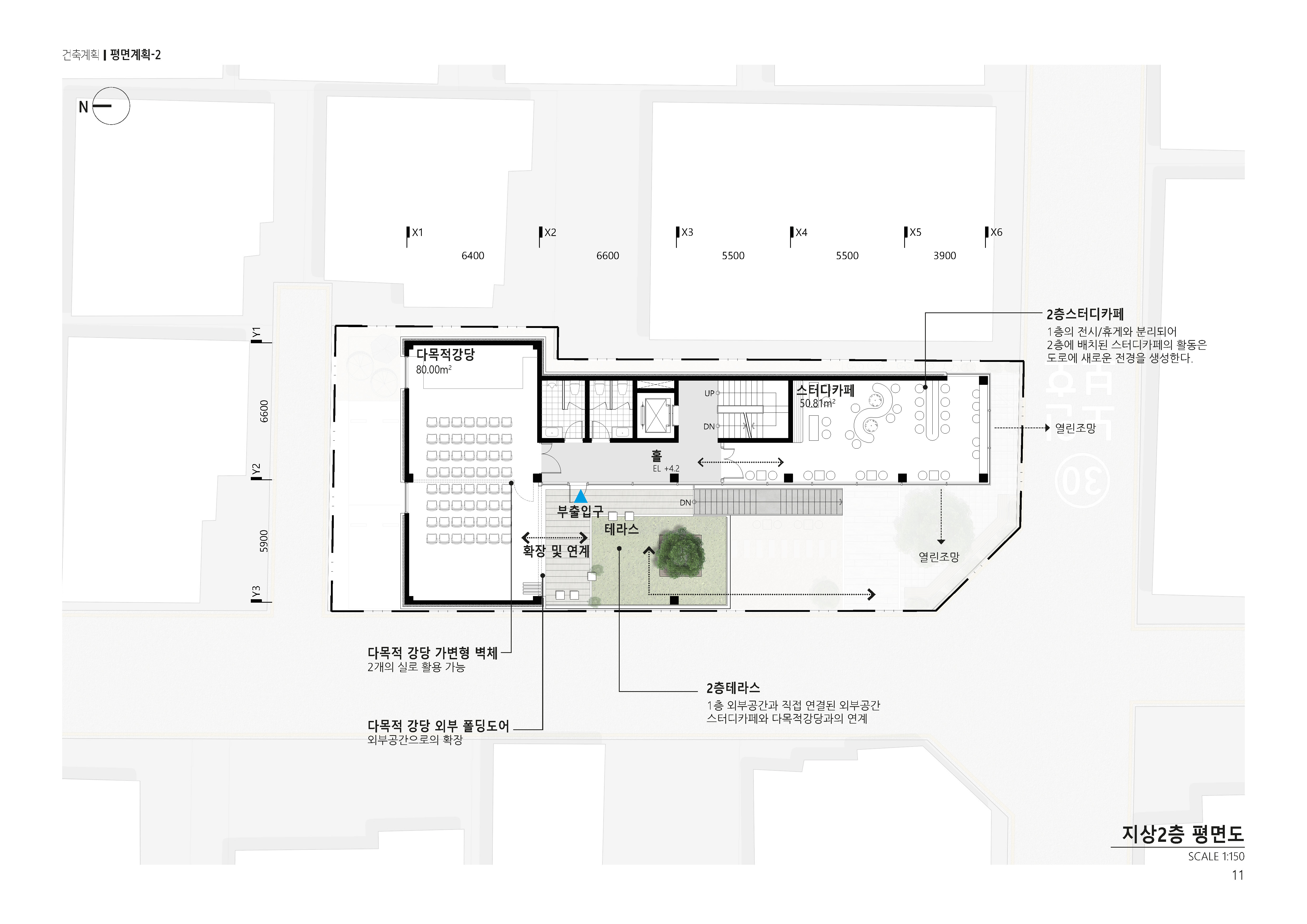
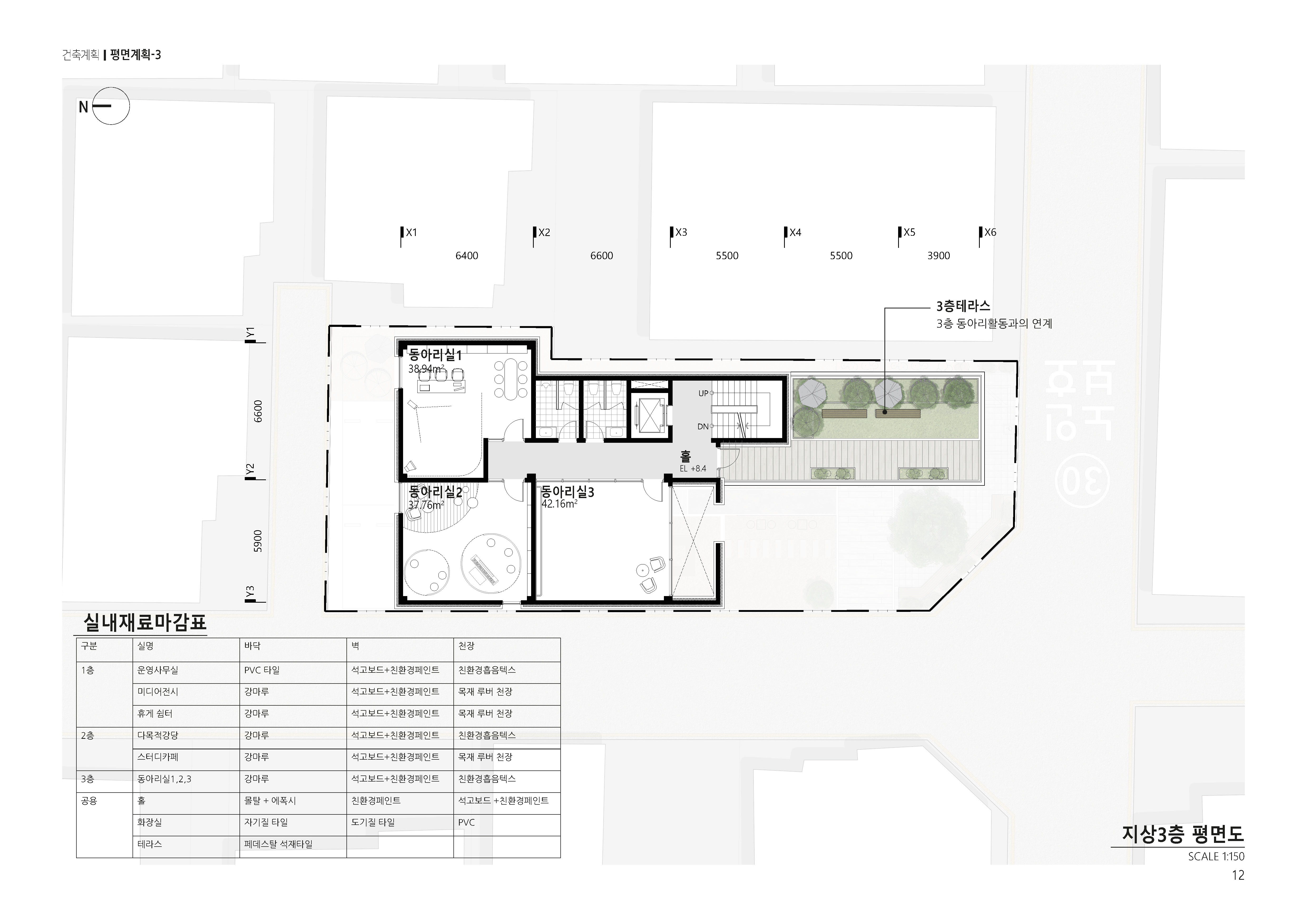
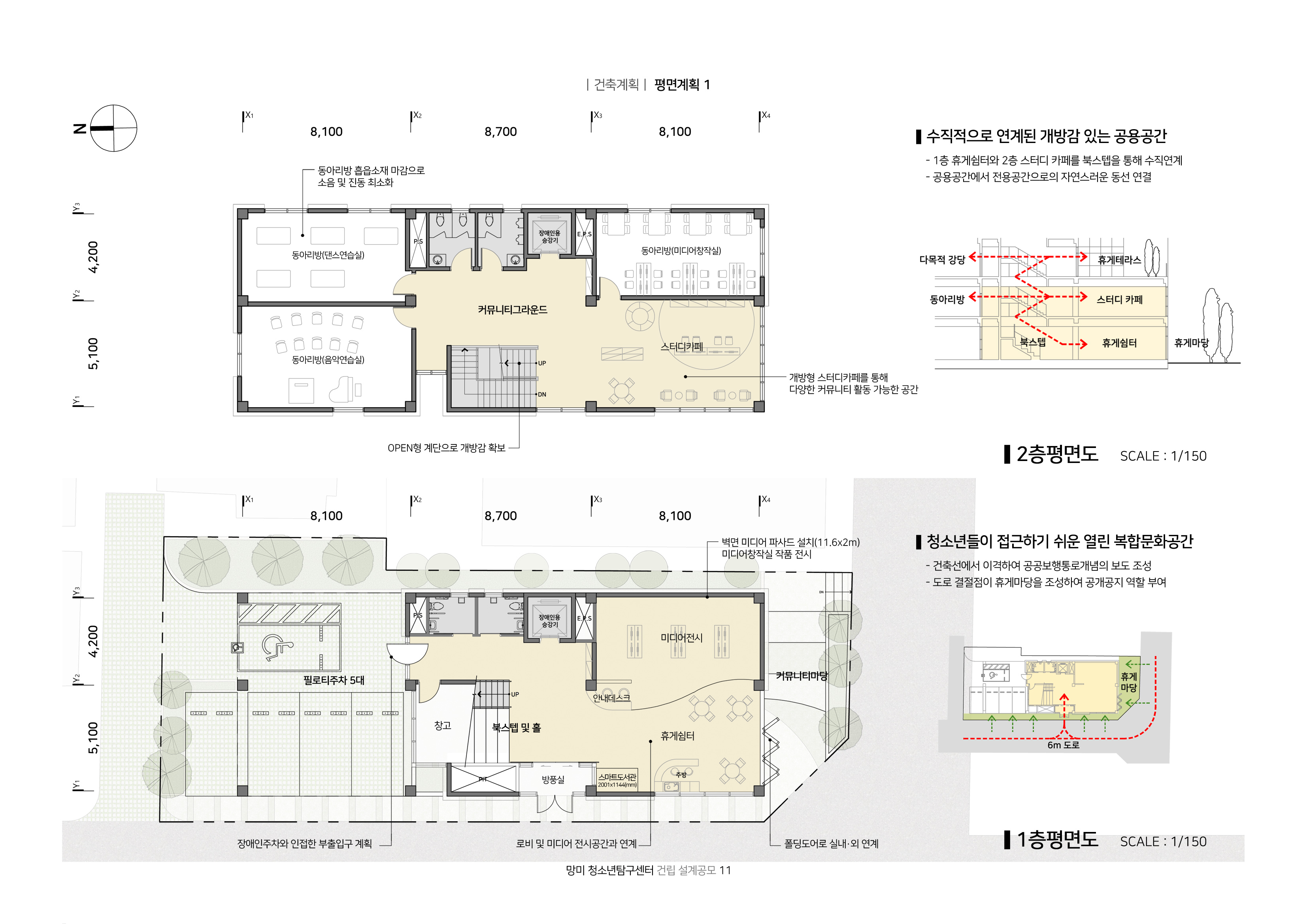
평면도



2등_(주)희담종합건축사사무소



3등_ 이랑건축사사무소 / 푸른담벼락 건축사사무소




4등_건축사사무소아키텍톤

5등_FLM건축사사무소 / 아이작건축사사무소

▼ 아래 링크는 지침서를 볼 수 있습니다.
▼ 아래 링크는 더 자세하게 볼 수 있습니다. 공식홈페이지
건축 설계공모 홈페이지
지역 청소년들의 동아리 활동 및 다양한 문화 교류 증진 및 다양한 계층들의 교류공간 제공하고 청소년의 건강한 활동지원과 문화공간 거점 확보하고 스마트 도서관 및 스터디카페 등 청소년들
making.busan.go.kr
▼ 아래 링크는 다른 자료를 볼 수 있습니다.
[서울]개봉1동 어울림복합플랫폼 공개설계공모(청소년센터)
설계공모개요 위치 개봉1동 134-18번지 외 3개 필지 새창으로 대상지 지도보기부지면적 472 ㎡건축물 주 용도 수련시설 : 생활권수련시설설계범위 과업내용서 및 설계 지침서 참고규모 ◦
mfowcity.com
[서울]동물복지지원센터 강동 건립 설계공모(동물병원)
동물복지지원센터 강동 건립 설계공모(동물병원) 현상개요 위치 서울특별시 강동구 길동 12-7 새창으로 대상지 지도보기부지면적 1,175 ㎡건축물 주 용도 제2종근린생활시설 : 동물병원
mfowcity.com
[서울] 종합보육시설 건립 설계공모 (어린이집)
종합보육시설 건립 설계공모 개요 (어린이집) 위치 서울특별시 서대문구 홍은동 11-204일대 새창으로 대상지 지도보기부지면적 638 ㎡건축물 주 용도 노유자시설 : 어린이집규모 지하 2층,
mfowcity.com
'현상설계모음 > 센터' 카테고리의 다른 글
| [부산] 사상 숲체험교육관 건립사업 (1) | 2024.09.11 |
|---|---|
| [서울]개봉1동 어울림복합플랫폼 공개설계공모(청소년센터) (1) | 2024.09.09 |
| [서울]동물복지지원센터 강동 건립 설계공모(동물병원) (4) | 2024.09.07 |