설계공모개요
- 위치: 부산 사상구 괘법동 116번지
- 건축물 용도: 교육연구시설(숲체험교육관), 제1종근린생활시설(휴게음식점)
- 층수: 지상3층이하
- 대지면적 623,118㎡, 실사용 대지면적 8,851㎡
- 연면적:2,300㎡
- 총 예정사업비:13,000,000천원
- 예정 공사비:10,385,805천원
- 예정 설계비:448,068천원
당선안
목구조를 반영한 설계로 목구조의 이해도가 높고
7개의 팔레트 마당계획이 우수한 안이 당선되었다.
1등_(주)라라호호건축사사무소

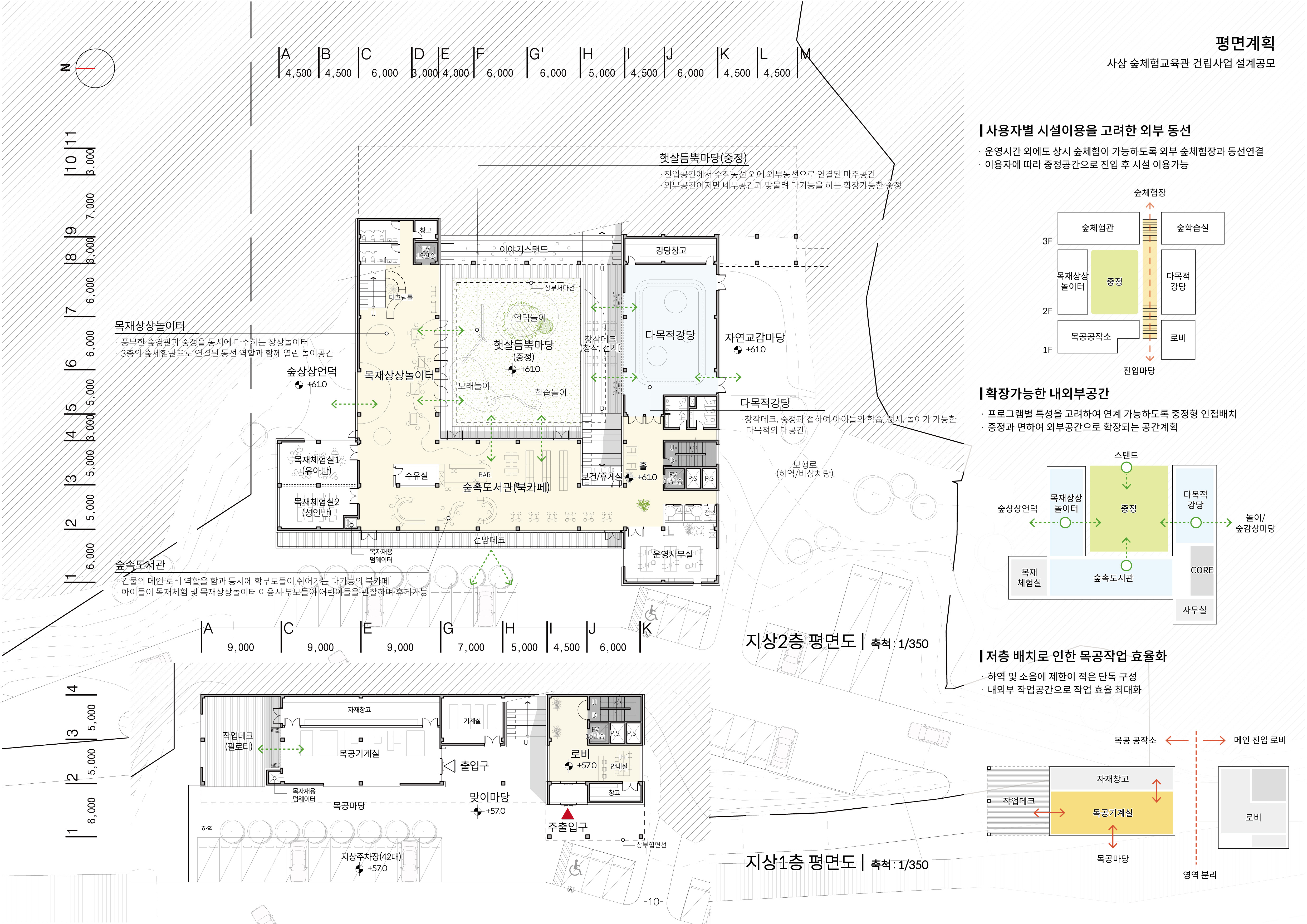
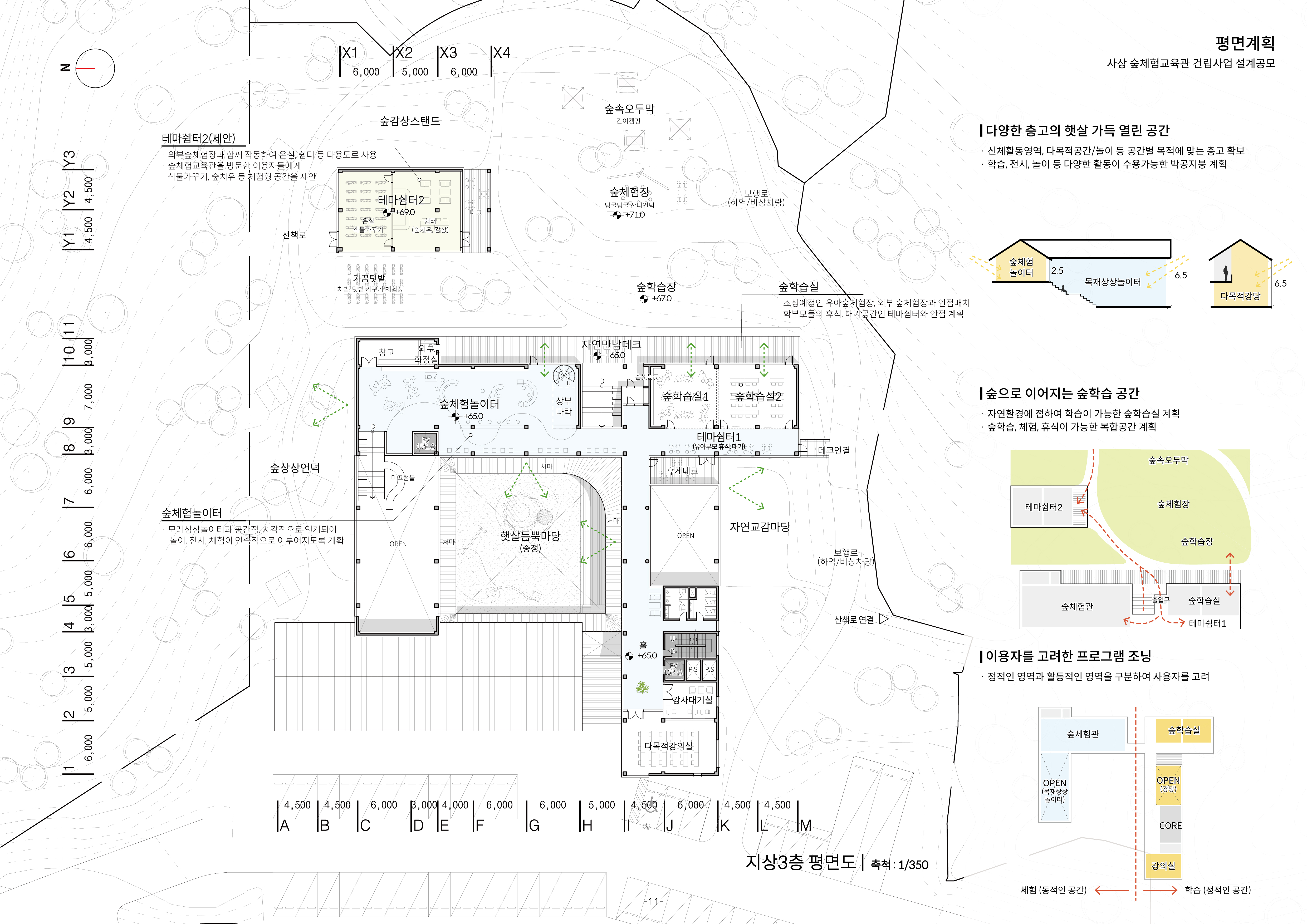
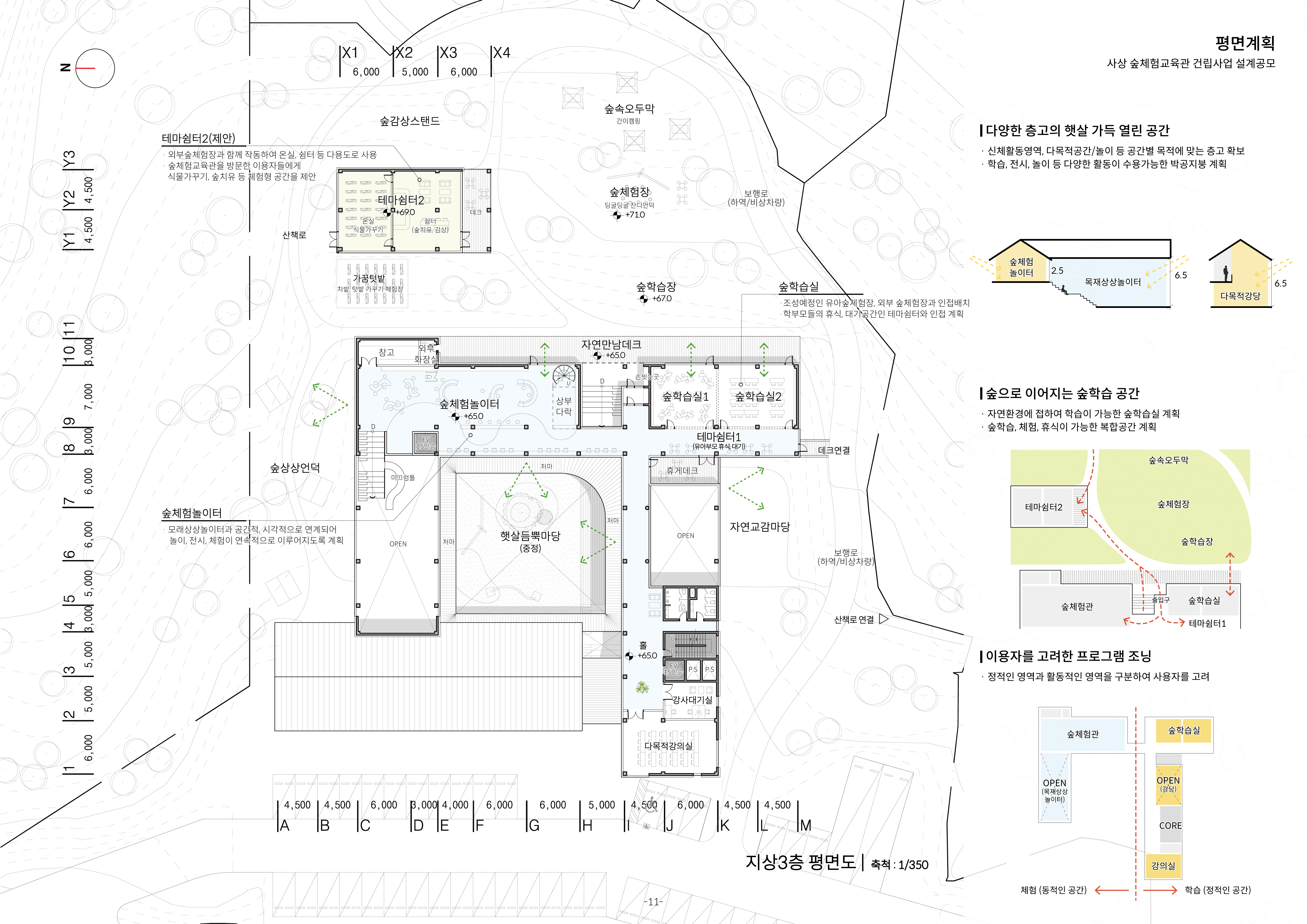
평면도



2등_건축사사무소 필로 / 건축사사무소 안목



3등_더그라운드 건축사사무소




4등_유가건축사사무소

5등_디엘에스 건축사사무소 / 건축사사무소 지오건축

▼ 아래 링크는 지침서를 볼 수 있습니다.
▼ 아래 링크는 더 자세하게 볼 수 있습니다. 공식홈페이지
건축 설계공모 홈페이지
디아이 건축사사무소 황용길, 이도 건축사사무소 여운배, ㈜종합건축사사무소 디엔지 이동경, 지혜 건축사사무소 최지혜
making.busan.go.kr
▼ 아래 링크는 다른 자료를 볼 수 있습니다.
[부산]망미 청소년탐구센터 조성사업 설계공모(청소년센터)
설계공모개요위치:부산 수영구 망미동 818-40건축물 용도: 제1종근린생활시설층수: 지상3층이하대지면적:410㎡연면적: 598.77㎡총 예정사업비: 6,775백만원예정 공사비:4,363백만원예정 설계비: 232백
mfowcity.com
[서울]개봉1동 어울림복합플랫폼 공개설계공모(청소년센터)
설계공모개요 위치 개봉1동 134-18번지 외 3개 필지 새창으로 대상지 지도보기부지면적 472 ㎡건축물 주 용도 수련시설 : 생활권수련시설설계범위 과업내용서 및 설계 지침서 참고규모 ◦
mfowcity.com
[서울]동물복지지원센터 강동 건립 설계공모(동물병원)
동물복지지원센터 강동 건립 설계공모(동물병원) 현상개요 위치 서울특별시 강동구 길동 12-7 새창으로 대상지 지도보기부지면적 1,175 ㎡건축물 주 용도 제2종근린생활시설 : 동물병원
mfowcity.com
[서울] 종합보육시설 건립 설계공모 (어린이집)
종합보육시설 건립 설계공모 개요 (어린이집) 위치 서울특별시 서대문구 홍은동 11-204일대 새창으로 대상지 지도보기부지면적 638 ㎡건축물 주 용도 노유자시설 : 어린이집규모 지하 2층,
mfowcity.com
'현상설계모음 > 센터' 카테고리의 다른 글
| [부산]망미 청소년탐구센터 조성사업 설계공모(청소년센터) (4) | 2024.09.10 |
|---|---|
| [서울]개봉1동 어울림복합플랫폼 공개설계공모(청소년센터) (1) | 2024.09.09 |
| [서울]동물복지지원센터 강동 건립 설계공모(동물병원) (4) | 2024.09.07 |