사상소방서 건축설계 공모개요
- 위치: 부산 사상구 삼락동 402-4 외 1필지
- 지역·지구 : 준공업지역, 가로구역별 최고높이 제한지역, 가축사육제한구역, 상대보호구역, 비행안전제6구역(전술)(6구역)
- 건축물 용도: 업무시설(공공업무시설)
- 대지면적: 3,647.2 ㎡
- 연면적: 5,300㎡
- 총 예정사업비 : 28,500,000,000원
- 예정 공사비: 20,238,000,000원
- 예정 설계비: 799,680,000원
현상설계공모 목적
건물 노후화 심각 및 구조적 안전 문제 발생과 당초 대비 조직 및 소방력 증가에 따른 업무 민원공간 협소 등 부지 확충 및 노후 소방서 재건축을 통한 직원 근무여건 개선 및 대시민 소방서비스 향상
당선작
1등_ 이솜건축사사무소

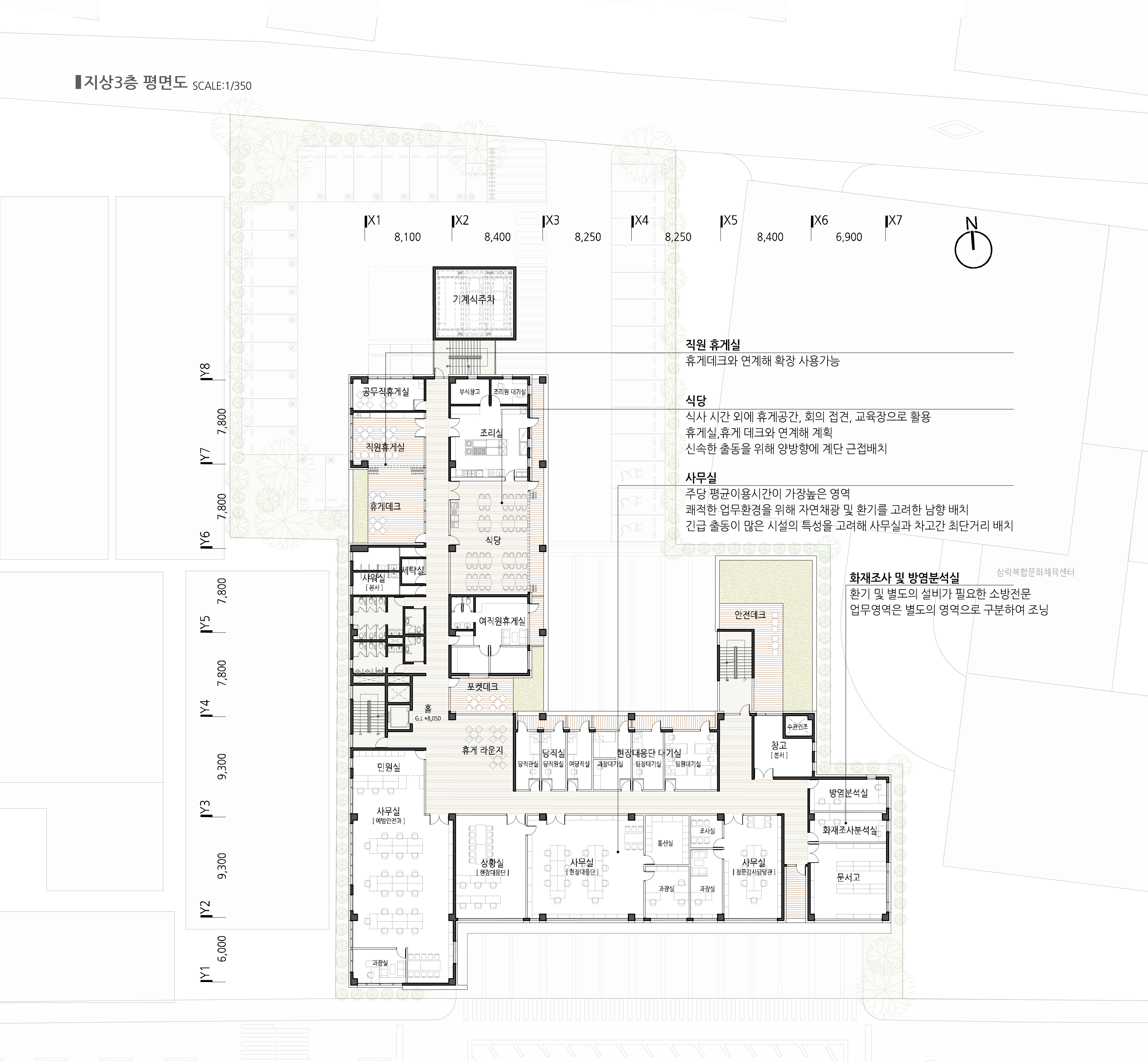
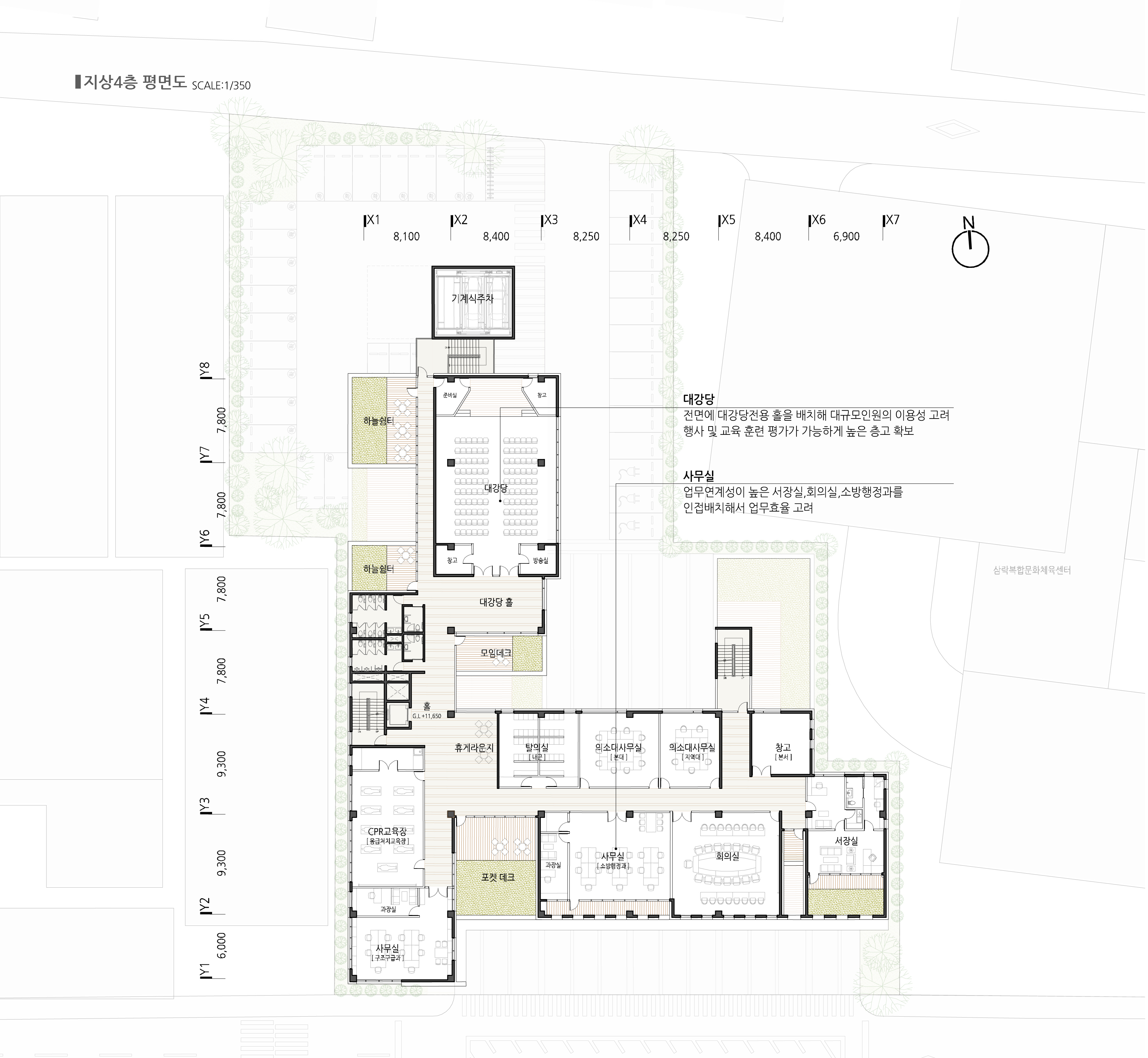
당선안 평면도





2등_ 제이오에이 건축사사무소

3등_ 스테이건축사사무소

4등_ 희가 건축사사무소, 건축사사무소 마온

5등_ 이도건축사사무소, 건축사사무소이도

▼ 아래 링크는 지침서를 볼 수 있습니다.
▼ 아래 링크는 더 많은 자료를 볼 수 있습니다.
https://making.busan.go.kr/main/7?action=view&no=70&no2=442
건축 설계공모 홈페이지
공지사항이 없습니다.
making.busan.go.kr
making.busan.go.kr
[서울] 거여119 안전센터(소방서)
서울 거여동 119 안전센터 공모 위치: 서울특별시 송파구 거여동 산30참가등록: 140명작품접수: 25명부지면적 1500 ㎡건축물 주 용도 업무시설 : 국가기관청사설계범위 119안전센터 신축 및
mfowcity.com
[부산] 공항119안전센터 신축(소방서)
공항119안전센터 신축개요 위치 :부산광역시 강서구 대저2동 3150-7지역·지구 :유통상업지역, 제1종지구단위계획구역 건축물 용도 :업무시설(공공업무시설) 대지면적 : 1,923.4㎡ 연면적 : 1,367
mfowcity.com
[부산] 송정119안전센터 이전신축 설계공모(소방서)
『송정119안전센터 이전신축』 설계공모 개요 위치 :부산광역시 기장군 기장읍 당사리 515번지지역·지구: 제1종일반주거지역, 제1종지구단위계획구역건축물 용도 : 제1종근린생활시설 (공공업
mfowcity.com
'현상설계모음 > 119소방서' 카테고리의 다른 글
| [부산]수정119안전센터 이전신축(소방서) (1) | 2024.09.05 |
|---|---|
| [부산] 송정119안전센터 이전신축 설계공모(소방서) (0) | 2024.09.03 |
| [부산] 공항119안전센터 신축(소방서) (6) | 2024.09.03 |
| [서울] 거여119 안전센터(소방서) (0) | 2024.09.02 |