반응형
『송정119안전센터 이전신축』 설계공모 개요
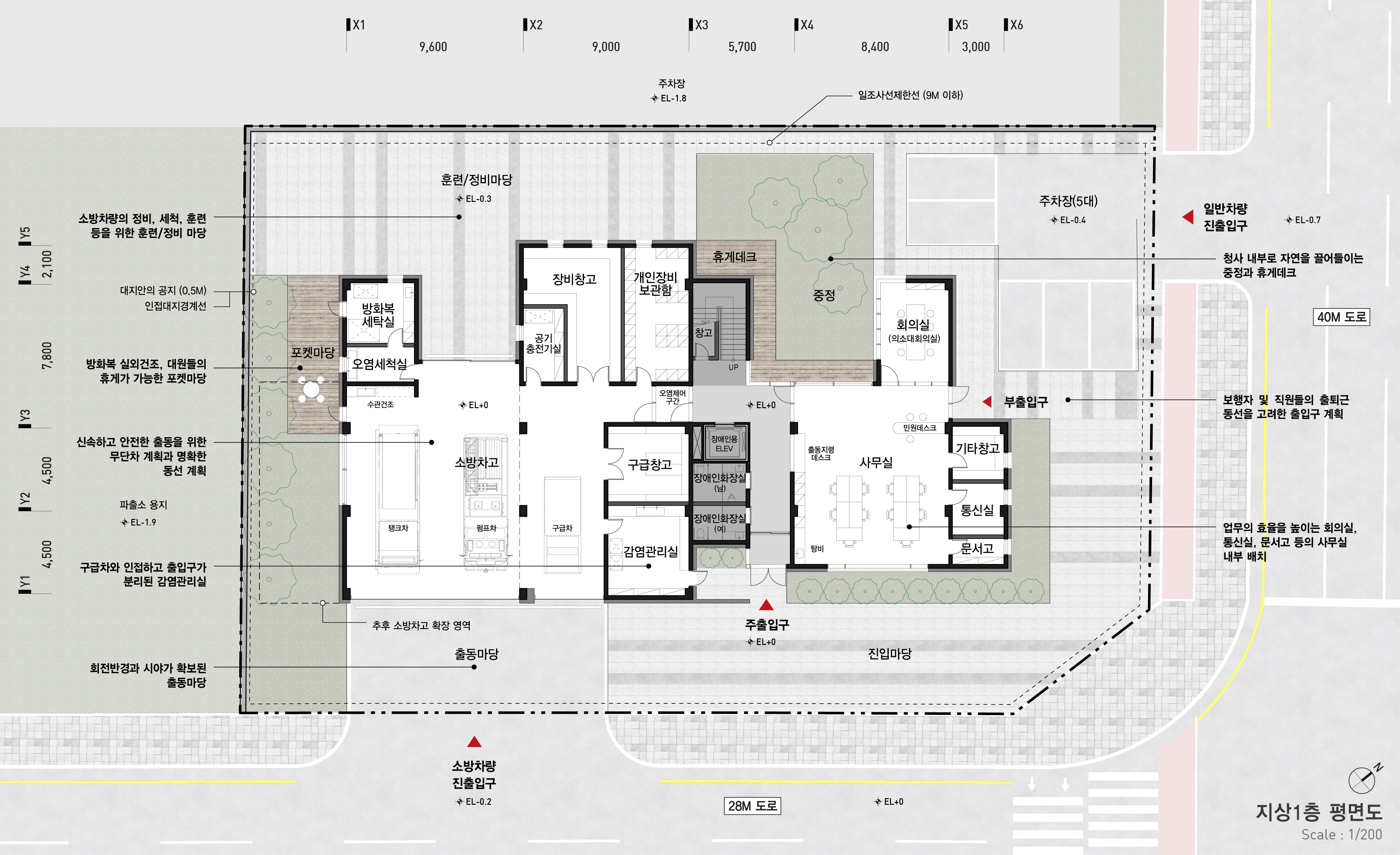
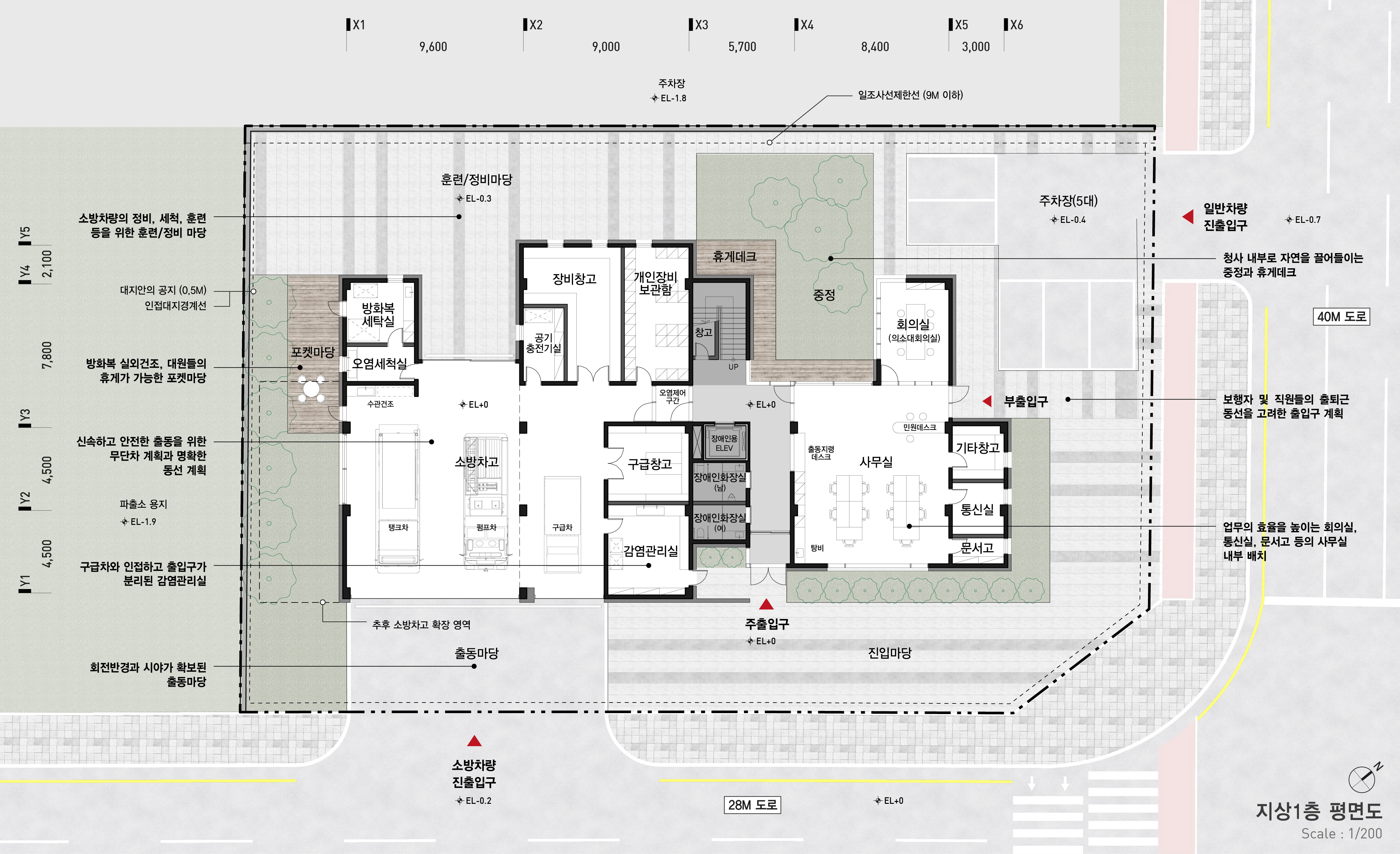
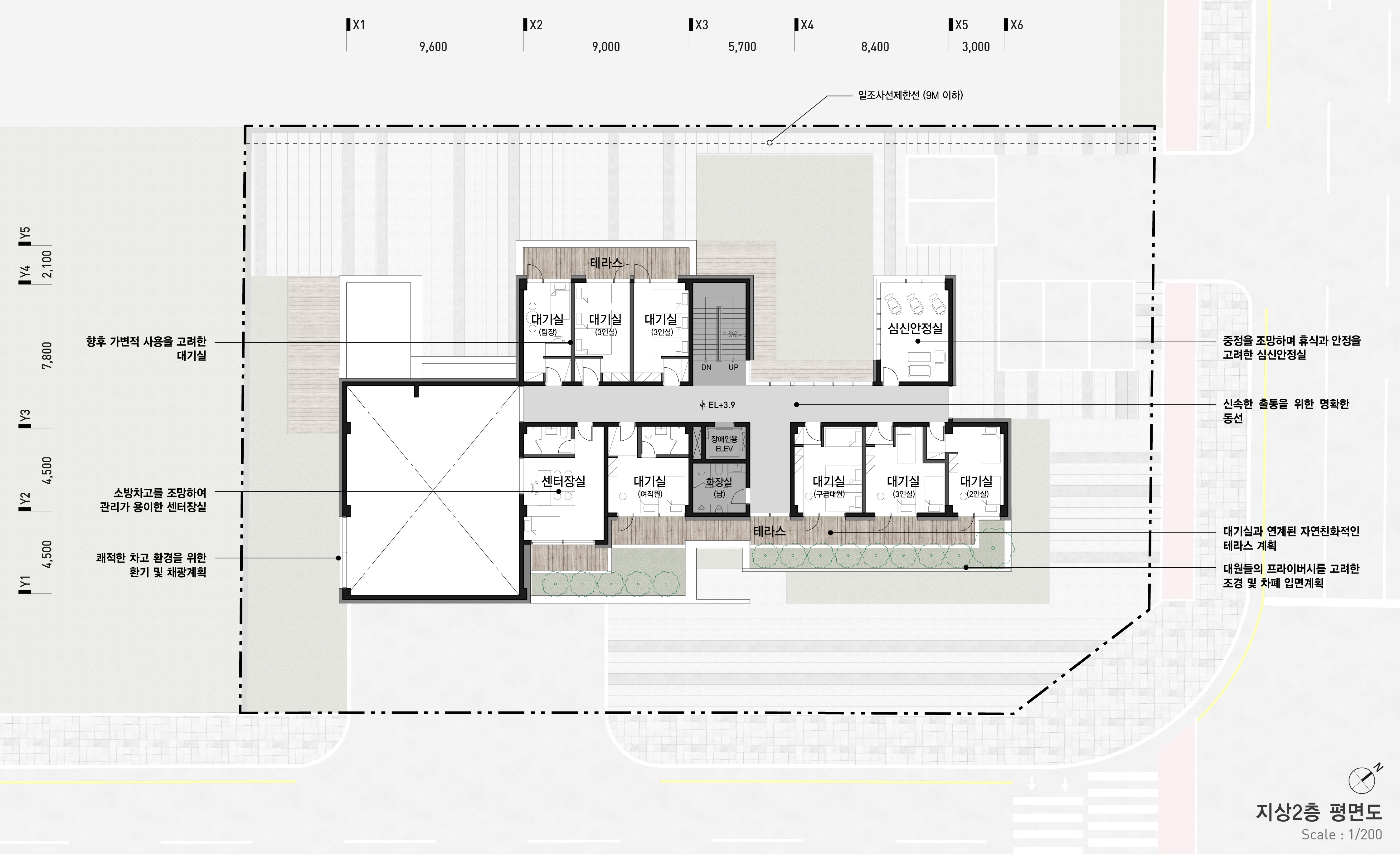
- 위치 :부산광역시 기장군 기장읍 당사리 515번지
- 지역·지구: 제1종일반주거지역, 제1종지구단위계획구역
- 건축물 용도 : 제1종근린생활시설 (공공업무시설)
- 대지면적 :1,551.625㎡
- 연면적 : 951㎡
- 총 예정사업비 : 5,745백만원
- 예정 공사비 : 3,433백만원
- 예정 설계비 : 144,100천원
현상설계공모 목적
오시리아 관광단지 등 기장 지역 주변 관광단지 조성으로 대상물 급증에 따른 소방수요가 증가함에 따라 119안전센터를 신설하여 재난 발생 시 적극적인 상황대처 및 예방활동을 철저히 하기 위함
당선작
1등_홉건축사사무소




2등 _아에아건축사사무소

3등 _ 금상건축사사무소

4등 _ 고온건축사사무소

5등 _ 강부존건축사사무소

▼ 아래 링크는 지침서를 볼 수 있습니다.
건축설계공모 지침서(송정119안전센터 이전신축)(수정).hwp
0.63MB
▼ 아래 링크는 더 많은 자료를 볼 수 있습니다.
https://making.busan.go.kr/main/7?action=view&no=71&no2=467
건축 설계공모 홈페이지
공지사항이 없습니다.
making.busan.go.kr
반응형
'현상설계모음 > 119소방서' 카테고리의 다른 글
| [부산]수정119안전센터 이전신축(소방서) (1) | 2024.09.05 |
|---|---|
| [부산] 사상소방서 건축설계공모 (2) | 2024.09.04 |
| [부산] 공항119안전센터 신축(소방서) (6) | 2024.09.03 |
| [서울] 거여119 안전센터(소방서) (0) | 2024.09.02 |