작품개요
부지면적 7,370 ㎡
용도 문화및집회시설 : 미술관
위치 서울특별시 금천구 독산동 1151번지 일대
지침서
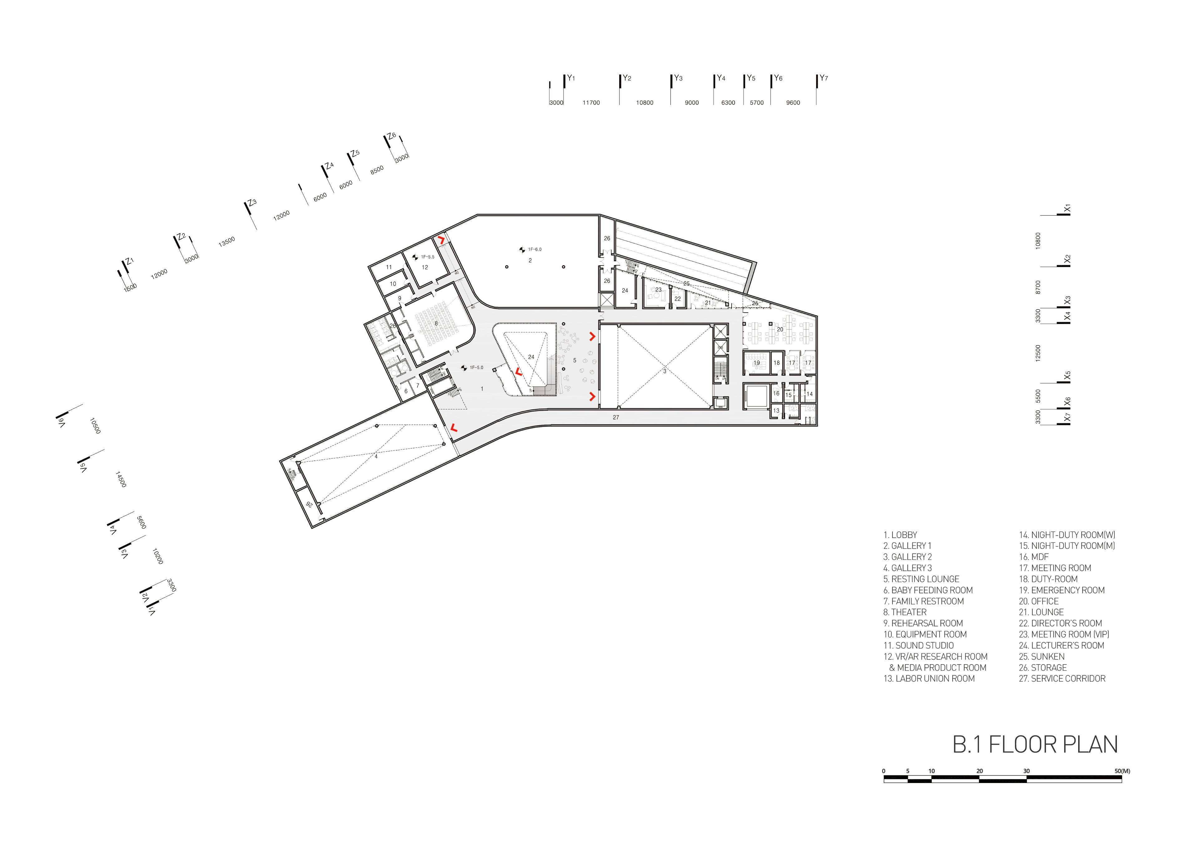
주요 실별 기준 준수 여부
· 전시실 (전시실1,2,3 개별 출입구 확보) 전시실1 – 채광이 들어오지 않는 폐쇄형 공간이며 5.5m이상 천정고를 확보
전시실2·3 – 전시기획의 개방성을 극대화할 수 있는 가변적 공간이며 8m이상 천정고 확보
프로젝트 갤러리 - 반개방형으로 부분적으로 채광이 들어올 수 있도록 하며 5.5m이상 천정고 확보
· 수장고 수장고 및 임시수장고 – 7m이상 천정고 확보
· 하역장 5.5m이상 천정고 확보
심사위원
- 서울시립대학교 / 건축 이충기
- 하버드대학교 / 조경 Niall Kirkwood
- 이손건축 / 건축 손진
- 유아이에이건축사사무소(주) 위진복
- 아뜰리에 리옹 서울 / 건축 이소진
심사평
다른작품과는 다르게 스트리트뮤지엄 새로운 제안.
유일한 낮은 볼륨의 작품으로 메시지를 전달.
작품당선안
(주)더시스템랩건축사사무소 / jwl (제이더블유랜드스케이프)
THE_SYSTEM LAB
DEVELOPING NEW TYPOLOGY THE_SYSTEM LAB proposes new type of architecture through rational innovation. Through developing new spatial types (NEW TYPOLOGY) and programs, Architecture should represent a fundamental organism that can respond to rapid transform
www.thesystemlab.com










서산예술지원센터 현상설계
서산예술지원센터 현상설계 개요 설계공모개요위치: 충남 서산시 해미면 관터로 30-22 건축물 용도: 문화 / 기타문화시설 층수: 지하 1층 지상 2층 대지면적 12,077㎡ 연면적:2,000㎡예정 공사비: 10,09
mfowcity.com
'현상설계모음' 카테고리의 다른 글
| 서산예술지원센터 현상설계 (0) | 2026.01.20 |
|---|